top of page
HAND DRAFTING
Hand-Drawn Kitchen Project
Fall 2023
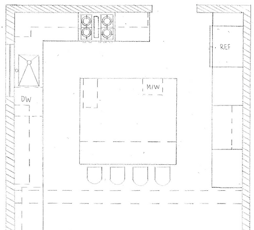
Sophomore year, we were given an empty floor plan to design a kitchen. I was assigned a neurodivergent client who has ADHD, and it was very important that I created a functional floor plan to meet her needs. After much research on ADHD, I was able to make a spacious, easy-flowing kitchen with a lot of storage. I hand-drafted the floor plan and elevations.





bottom of page